Aller à :

  • Aller à la recherche
  • Aller au menu principal
  • Aller au contenu
0
  • L'agence
    • Gestion de patrimoine
    • Défiscalisation
    • Expertise Immobilière
    • Investissement SCPI
  • immobiliers dom-tom
    • Guadeloupe
    • Martinique
    • Guyane
  • immobiliers Métropole
    • Région parisienne
    • Province
  • Immobilier professionnel
    • Ventes
    • Locations
  • Immobilier ancien
    • Terrains
    • Villas / Appartements
  • Locations
  • Ma Gestion Locative +
  • Société
    • Girardin à l'is
    • CIOP dom-tom
  • Nous contacter
0
VotreRecherche
Dans un rayon de
Budget
entre et €
Min €
Max €
  1. Meilleure agence immobilière Guadeloupe
  2. Lots
  3. Guadeloupe
  4. Petit bourg
  5. Villa
  6. T4
  7. Belle villa d exception a la vente hauteur lezarde petit bourg de nouveau a la vente prestige
Nouveauté
Réf : 790987
Villa
Belle villa d'exception à la vente HAUTEUR-LEZARDE Petit-bourg - De nouveau à la vente
Nombre de pièces 4
Nombre de chambres 3
Nombre de salles de bain 2
Vidéo
Le bien en vidéo
SpotVideo
750 000 €

Belle villa d'exception à la vente HAUTEUR-LEZARDE Petit-bourg - De nouveau à la vente Petit-Bourg (97170)

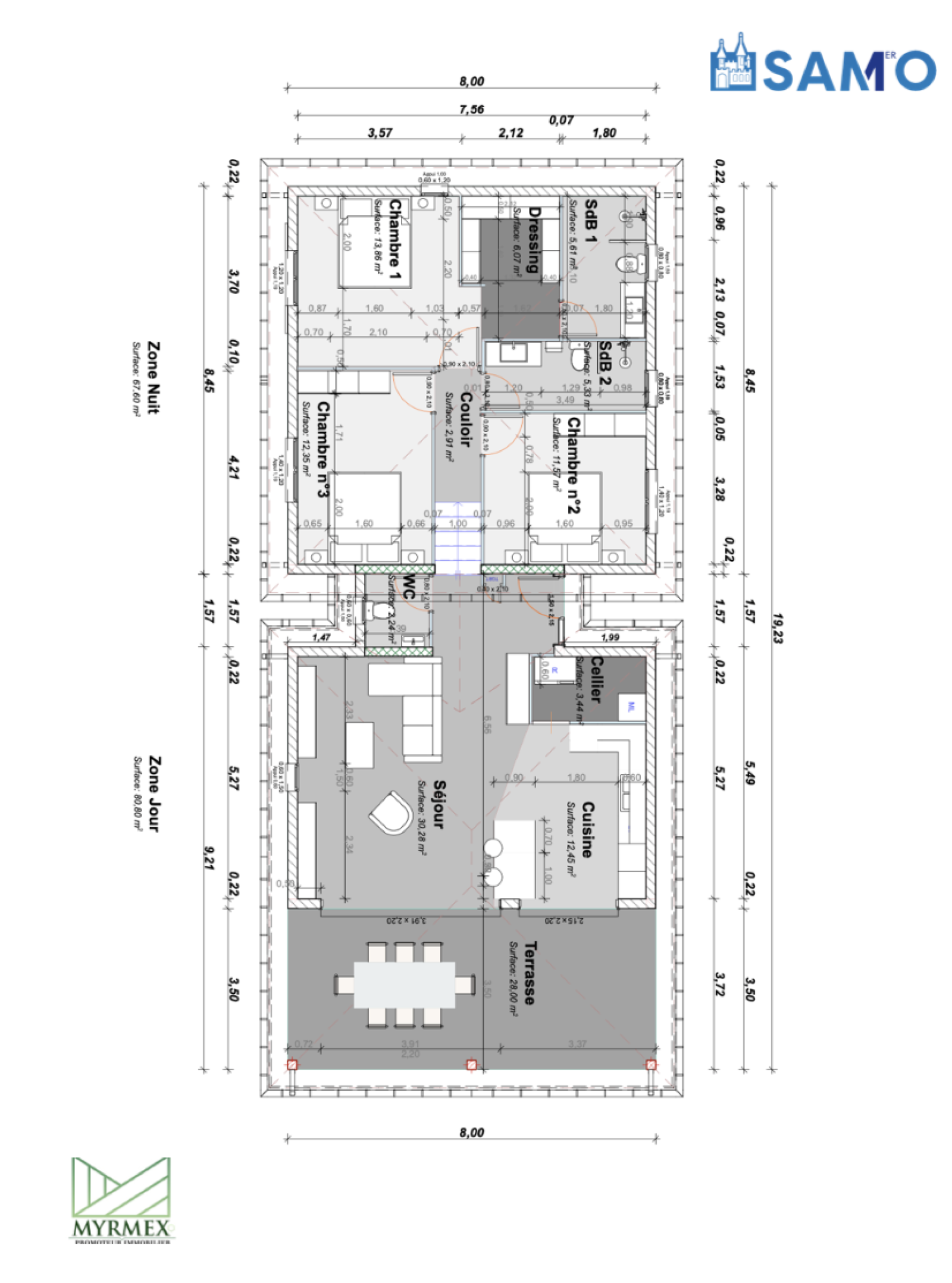
Découvrez ce programme d'exception sur Petit-bourg et profitez de l'opportunité d'acheter une belle villa en cours de construction ! Placement immobilier de qualité avec cette maison accompagnée de 3 chambres et d'une grande terrasse agréable et ensoleillée sur le territoire de Petit-Bourg. La maison se compose d'un espace cuisine et un espace nuit comprenant 3 chambres. Point important. La superficie intérieure habitable totalise à peu près 150m². À l'extérieur, vous disposerez d'un jardin de 800m² et une terrasse mesurant 28m² pour profiter une VUE EXCEPTIONNELLE sans visà vis sur la baie de Petit-bourg et la montagne. Le prix est de 790 000 €. N'hésitez pas à contacter votre agence Administration SAMO1ER pour plus d'informations. Cette propriété peut convenir à un investisseur grâce au CIOP.

  • Général
  • Détails +
  • Financier
  • DPE
  • Quartier
Caractérisque Valeurs
Code postal 97170
Surface habitable (m²) 150 m²
Nombre de chambre(s) 3
Nombre de pièces 4
Vue Dégagée sur la baie de Petit bourg et la foret domaniale
Caractérisque Valeurs
Nb de salle de bains 2
Cuisine Sans
Terrasse OUI
Terrain piscinable OUI
Terrain arboré OUI
Caractérisque Valeurs
Prix de vente honoraires TTC inclus 750 000 €
DPE GES
  • Commerces et santé
  • Loisirs
  • Ecoles
  • Transports
  • Pratique
Cette offre
vous intéresse

* champs obligatoires

Les informations recueillies sur ce formulaire sont enregistrées dans un fichier informatisé par La Boite Immo agissant comme Sous-traitant du traitement pour la gestion de la clientèle/prospects de l'Agence / du Réseau qui reste Responsable du Traitement de vos Données personnelles. La base légale du traitement repose sur l'intérêt légitime de l'Agence / du Réseau. Elles sont conservées jusqu'à demande de suppression et sont destinées à l'Agence / au Réseau. Conformément à la loi « informatique et libertés », vous disposez des droits d’accès, de rectification, d’effacement, d’opposition, de limitation et de portabilité de vos données. Vous pouvez retirer votre consentement à tout moment en contactant directement l’Agence / Le Réseau. Consultez le site https://cnil.fr/fr pour plus d’informations sur vos droits. Si vous estimez, après avoir contacté l'Agence / le Réseau, que vos droits « Informatique et Libertés » ne sont pas respectés, vous pouvez adresser une réclamation à la CNIL. Nous vous informons de l’existence de la liste d'opposition au démarchage téléphonique « Bloctel », sur laquelle vous pouvez vous inscrire ici : https://www.bloctel.gouv.fr Dans le cadre de la protection des Données personnelles, nous vous invitons à ne pas inscrire de Données sensibles dans le champ de saisie libre.
Ce site est protégé par reCAPTCHA, les Politiques de Confidentialité et les Conditions d'Utilisation de Google s'appliquent.

Partager le bien
Nos outils
Imprimer Imprimer
Calculatrice financière

* Champ obligatoire

Partager l'annonce

* champs obligatoires

Les informations recueillies sur ce formulaire sont enregistrées dans un fichier informatisé par La Boite Immo agissant comme Sous-traitant du traitement pour la gestion de la clientèle/prospects de l'Agence / du Réseau qui reste Responsable du Traitement de vos Données personnelles. La base légale du traitement repose sur l'intérêt légitime de l'Agence / du Réseau. Elles sont conservées jusqu'à demande de suppression et sont destinées à l'Agence / au Réseau. Conformément à la loi « informatique et libertés », vous disposez des droits d’accès, de rectification, d’effacement, d’opposition, de limitation et de portabilité de vos données. Vous pouvez retirer votre consentement à tout moment en contactant directement l’Agence / Le Réseau. Consultez le site https://cnil.fr/fr pour plus d’informations sur vos droits. Si vous estimez, après avoir contacté l'Agence / le Réseau, que vos droits « Informatique et Libertés » ne sont pas respectés, vous pouvez adresser une réclamation à la CNIL. Nous vous informons de l’existence de la liste d'opposition au démarchage téléphonique « Bloctel », sur laquelle vous pouvez vous inscrire ici : https://www.bloctel.gouv.fr Dans le cadre de la protection des Données personnelles, nous vous invitons à ne pas inscrire de Données sensibles dans le champ de saisie libre.
Ce site est protégé par reCAPTCHA, les Politiques de Confidentialité et les Conditions d'Utilisation de Google s'appliquent.

Détail des diagnostics énergétiques
DPE GES
DPE ANCIENNE VERSION

Partager avec vos proches

Facebook Facebook
Messenger Messenger
Twitter Twitter
WhatsApp WhatsApp
LinkedIn LinkedIn
Copier le lien Copier le lien
Autres biens

Ces biens peuvent aussi vous intéresser

Villa

Villa neuf avec vue et terrain exceptionnelle à la vente PETIT-BOURG

Petit-Bourg (97170)
Voir le bien

Carte professionnelle Transaction N°CPI 971 2016 000 005 349 de la CCI Guadeloupe

Se connecter
Espace propriétaire
Page d'accueil
Avis clients
Adhérents

© 2026 | Tous droits réservés | Traduction powered by Google |

  • Nos honoraires
  • Plan du site
  • Mentions légales
  • Admin
  • Nos liens
  • Politique de confidentialité
  • Politique RGPD
  • LinkedIn

Comme beaucoup, notre site utilise les cookies

On aimerait vous accompagner pendant votre visite. En poursuivant, vous acceptez l'utilisation des cookies par ce site, afin de vous proposer des contenus adaptés et réaliser des statistiques !

Paramétrer

Cookies fonctionnelsCes cookies sont indispensables à la navigation sur le site, pour vous garantir un fonctionnement optimal. Ils ne peuvent donc pas être désactivés.

Statistiques de visitesPour améliorer votre expérience, on a besoin de savoir ce qui vous intéresse !
Les données récoltées sont anonymisées.

?

Google Analytics

En savoir plus